
美標法蘭
- 質量穩定:實行全過程質量監控,細致入微,各方面檢測!
- 價格合理:嚴格把控成本控制,減少了開支,讓利于客戶!
- 交貨快捷:新型生產流水線,充足的備貨,縮短了交貨期!
- 銷售:0577-85886898
詳情介紹
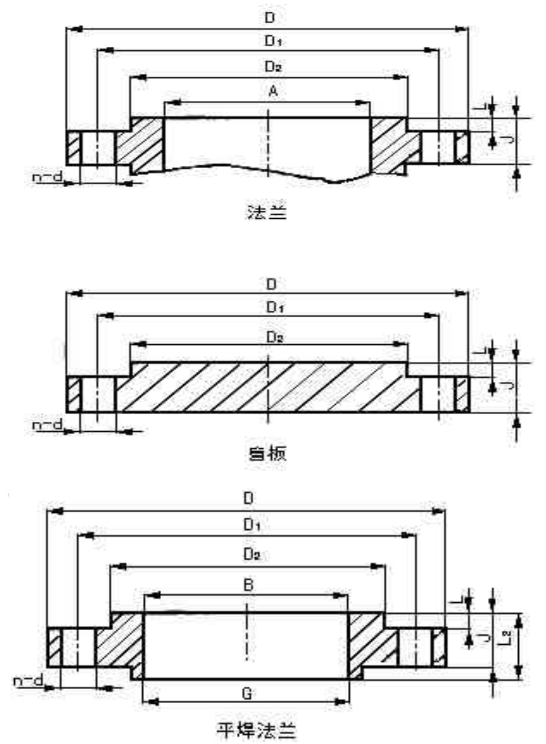
美標法蘭標準尺寸表

ANSI150RF法蘭尺寸表
| 公稱通徑 | 外徑 | 螺栓孔中心圓直徑 | 連接凸出部分直徑 | 內徑 | 焊接處頸部直徑 | 頸根部直徑 | 法蘭厚度 | 焊接法蘭長度 | 連接凸出部分高度 | 螺栓孔直徑 | 數量 | 螺栓直徑 | |||||
| DN | D | D2 | D2 | A | B | C | E | F | G | J | L1 | L2 | L3 | L | d | n | M |
| 20 | 98 | 70 | 43 | 21 | 28 | 20 | 27 | 38 | 13 | 53 | 16 | 229 | 1.H | 15 | 4 | 12 | |
| 25 | 108 | 79.5 | 51 | 27 | 35 | 25 | 34 | 51 | 49 | 14 | 56 | 17 | 1.6 | 15 | 4 | 12 | |
| 32 | 118 | 89 | 63.5 | 35 | 43 | 32 | 42 | 60 | 59 | 16 | 57 | 21 | 1.6 | 15 | 4 | 12 | |
| 40 | 127 | 98.5 | 73 | 41 | 50 | 40 | 48 | 67 | 65 | is | 62 | 22 | 1.6 | 15 | 4 | 12 | |
| 50 | 152 | 120.5 | 92 | 53 | 62 | 50 | 60.5 | 83 | 78 | 19 | 64 | 25 | 1.6 | 19 | 4 | 16 | |
| 65 | 178 | 139.5 | 105 | 63 | 75 | 65 | 73 | 95 | 91 | 24 | 70 | 29 | 1.6 | 19 | 4 | 16 | |
| 80 | 190 | 152.5 | 127 | 78 | 91 | 80 | 89 | 108 | 108 | 24 | 70 | 30 | 1.6 | 19 | 4 | 16 | |
| 100 | 229 | 190.5 | 157 | 102 | 116 | 100 | 114 | 140 | 135 | 24 | 76 | 33 | 305 | 1.H | 19 | 8 | IH |
| 125 | 254 | 216 | 186 | 128 | 144 | 125 | 141 | 165 | 164 | 24 | 89 | 37 | 1.6 | 23 | 8 | M20 | |
| 150 | 279 | 241.5 | 216 | 154 | 171 | 150 | 168 | 197 | 192 | 25 | 89 | 40 | 1.6 | 23 | 8 | M20 | |
| 200 | 343 | 298.5 | 270 | 203 | 221 | 200 | 219 | 248 | 246 | 29 | 102 | 44 | 1.6 | 23 | 8 | M20 | |
| 250 | 406 | 362 | 321 | 255 | 276 | 250 | 273 | 305 | 305 | 30 | 102 | 49 | 1.6 | 25 | 12 | M22 | |
| 300 | 483 | 432 | 381 | 305 | 327 | 300 | 324 | 365 | 365 | 32 | 114 | 56 | 1.6 | 25 | 12 | M22 | |
